Installation of the Opening Sashes of Aluminum Alloy Doors and Windows
Installation of Sliding Door and Window Sashes
Divide the assembled sliding door and window sashes into inner sashes and outer sashes. When installing the sashes indoors, first insert the outer sash into the groove of the upper track, and let it naturally fall into the outer track of the corresponding lower track. Then install the inner sash in the same way, and then install the supporting auxiliary parts such as anti - theft blocks and anti - collision blocks.

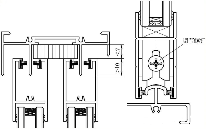
The overlapping height between the upper track and the sliding door and window sash shall not be less than 10 mm, and the parallel gap between the upper end of the sliding door and window sash and the upper track shall not be greater than 7 mm. This not only ensures the safety in use without the sash falling off and the smooth sliding operation but also improves the air tightness.
For the adjustable pulleys, adjust the pulleys after the installation of the sliding door and window sashes to adjust the height of the door and window sashes on the track and make the sashes parallel to the frame.










